Lift Developments 2023/24

Thank you to those that took part in the consultation

Many thanks to everyone who came to the consultation events - there were over a hundred visitors including residents, young people and parents. Special thanks to those who gave written feedback - there were over 40 comment cards and emails received. This webpage was visited by 244 people during the consultation period. We have listened to those who both support and oppose the project. We will do our best to ensure the build has as little impact on residents as practicably possible.

Update

The project was heard by Islington’s sub-planning committee on 19 September and was granted planning permission. The process has been long but we are pleased to be able to start the build of the new dance studio and the third floor accessible toilets.

Works schedule

The demolition of the out houses will take place in early October. This will take approximately 10 days and will be swiftly followed by the excavation of the foundations which will take a further five days.

The pouring of the concrete is expected to commence the week beginning 16 October. This phase of the works will see the nosiest period end.

On 13 November the timber frame is expected to arrive on site and has a three week build period. Much of the work has been done off site to minimise the on-site build time. The building will need to be made weather tight with windows, doors, cladding and roofing installed which has a 4-week timeline. Internal works can take place during this period, but we anticipate these will cause minimal disruption.

The build with all its various components is expected to be completed in Spring 2024.

Background

45 White Lion Street has been serving young people in Islington since 1874. Over the years it has been a school, college and now a youth hub and the building has changed with the times. Now Isledon, in partnership with Islington Council, are planning several new developments at Lift in early 2023. These will improve accessibility and increase opportunities for young people and the wider community.

Isledon is a community interest company and has a 15 year lease on the Lift building that is owned by Islington Council. We run a wide range of youth services and when the spaces are not being used by young people they are available for hire to businesses, organisations and community groups. Income from this venue hire goes towards funding high quality facilities, youth services and job opportunities for local young people.

Islington Council’s ambition is to create a more equal Islington and ensure that every young person in the borough has access to the opportunities they need to thrive. The council funds an extensive universal youth offer for Islington’s young people and has committed to further invest £550,000 towards the capital improvements at Lift to ensure that young people have access to high quality modern facilities.

Thanks to the Backstage Trust for funding the feasibility studies and professional fees to support the design.

For brief history of 45 White Lion Street click here

Project Summary

  • New accessible toilet in disused space on the third floor
  • Convert meeting room into soundproof recording booth and studio
  • New building for a dance studio replacing outhouses and four car parking spaces
  • Retractable wall in current dance studio so it can become a flexible-use space
Lift from White Lion Street

Lift from White Lion Street

Accessible toilet

Lift has accessible toilets on the ground, first and second floors but none on the busy third floor which consists of the roof terrace and two meeting rooms. These spaces are used extensively for training and currently participants need to change floors to use the toilet facilities.

Planning permission has been granted for a new accessible toilet to be built on an open disused part of the roof that does not currently have public access. It will be single storey and the new construction will not protrude above the height of the existing parapet. This means that it will not be visible from street level in any of the surrounding streets.

While the new toilet will meet all current building regulations and accessibility requirements, we welcome suggestions, on making the new space as user-friendly and attractive as possible.

Proposed location of new Accessible WC between lift core and chimney

WC plan

Recording studio

There is currently a programme of music-related activities for young people at Lift as well as regular podcasting projects. It has long been recognised that a sound-proofed recording studio with improved recording equipment would greatly enhance the offer for young people at Lift.

We have identified a first-floor room that would make an ideal location. It is currently used for small meetings that can be accommodated in other parts of the building.

By moving current activities to this space it will allow an expansion of the youth programme and reduce noise transfer within the building.

These plans were not subject to planning and started in May. They are almost complete, and we hope they will be ready to use by the end of October. If you are interested in seeing this particular development, please get in touch and we would be glad to show you the space.

Music studio at Rose Bowl youth centre

Music studio at Rose Bowl youth centre

Dance studio

Dance is one of the most popular activities at Lift and currently takes place in a large, converted classroom on the third floor. While it is a beautiful space it is not ideal for dance activities. The floor is solid and there is sound and vibration transfer to the rooms below and adjacent to the extent they cannot be used at the same time. Also, during the summer the windows have to be opened for ventilation causing some sound leakage. We have looked at ways of improving the situation, but the costs and disruption involved do not give a realistic solution to the problem.

This led to the idea that a better answer would be to have a purpose-built dance studio built in the southwest corner of the car park. It will involve the removal of some disused outbuildings and a reduction in the number of public car spaces available. Lift has excellent public transport connections and reducing traffic to the area will be welcomed by many.

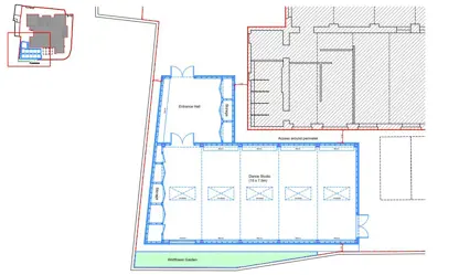
Planning permission has been granted for a single story new building. The dimensions of the proposed main dance space are 15 x 7.5m and the floor-to-ceiling height is 4.5m (the current third floor dance studio is 16 x 7m). An entrance hall will be provided to the north of the main space, acting as a waiting area, thermal buffer and an acoustic lobby. There will be step-free access to the new dance studio from the main building. The building will have natural light via five large rectangular rooflights. There will be a storage space, mirrors, mechanical ventilation, and a semi-sprung floor. An acoustic consultant has been appointed. The building design is by Tidal Architects.

The new dance studio will be built with sustainable materials using natural products wherever possible to provide an energy efficient and low-carbon building both in its construction and use.

In addition to dance, the new facility will be ideal for yoga, mindfulness and meditation, keep-fit classes and a rehearsal space.

The outbuildings located in the south west corner were disused for many years. It is unclear when they were built. The windows, doors and roof have been replaced over time and so there is no architectural merit in what remains. Removing the outbuildings requires Conservation Area Consent however given the limited historic significance of these structures, we do not believe their removal will have an impact on the overall quality of the Chapel Market / Penton Street Conservation Area in which Lift sits.

One car parking space will be retained for use of disabled users and to allow for off-road deliveries. This will not be available during the building works.

We plan to reduce disruption and noise as much as possible and it will be a self-contained building site with skips, materials and welfare within the footprint of Lift.

We welcome suggestions on the new studio aesthetics and facilities. We also welcome comments, especially from young people and dance professionals using the current studio, on the facilities and future programming.

Outbuildings demolished early October

Outbuildings demolished early October

Studio plan side on

Studio plan side on

Studio plan from above

Studio plan from above

View of proposed studio development from above

View of proposed studio development from above

Artist impression of new studio exterior

Artist impression of new studio exterior

Artist impression of new studio interior

Artist impression of new studio interior

Flexible-use space

A new semi-sprung floor was installed in September 2023. The current studio will have a retractable wall built down the middle so it can be used as a more flexible space for both young people and hirers. Priority in usage will be given to activities that do not create noise and vibration nuisance so we can maximise the number of spaces being used in the building. 

We welcome suggestions, especially from young people, on the type of activities that new flexible spaces could be used for and any equipment that might be needed.